
- 產品名稱:eaccor-SS型皮帶輸送機中部采制樣系統
- 產品編號:
- 產品概括:
- 使用精度:
一種高精度、高穩定性智能稱重系統 長期使用精度±0.2%

系統應用與組成
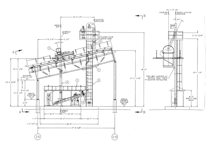
中部采制樣是指初級采樣機安裝在皮帶輸送機中部位置,從水平或傾斜運動的輸送帶上直接采集子樣的方式。
圖片展示了一種典型的中部兩級采制樣系統。該系統由旋斗式中部采樣機、初級樣品給料機、錘式破碎機、次級樣品給料機、二次采樣機和余料處理設備等組成。

系統工作過程
該系統的工作過程如下:可實現定時定量控制取樣,子樣經過溜管進入樣品給料機,給料機將子樣連續均勻地送入破碎機,破碎機按規定的粒度要求進行破碎,破碎后的子樣進入次級給料機,經過二次采樣機進行二次采樣縮分,***終樣品進入收集罐內,余料輸入斗提機或螺旋輸送機等設備返回到主物料流中。
系統特點與優點
◆ 采用PLC控制,自動化程度高,運行可靠。
◆ 系統設計緊湊、節省空間、適于低空間安裝。
◆ 單元式結構便于現場組合安裝。
◆ 精心的設計和選材有效地防止堵料和撒料。



上一個產品:沒有了
下一個產品:eaccor-AS型螺旋鉆式采制樣系統